José Manuel Rogers

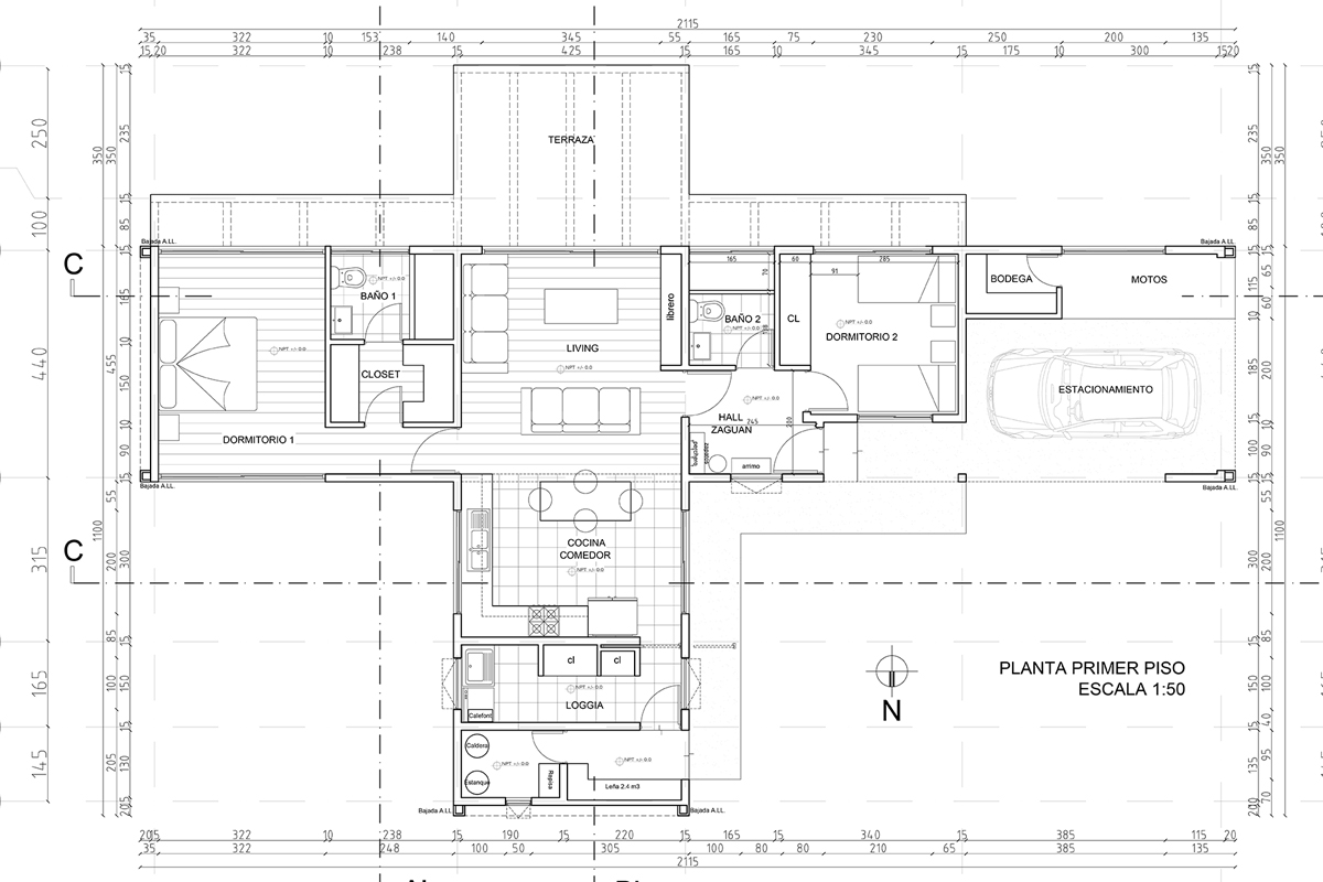
Casa sobre fundación corrida en cocina, loggia y sala de caldera. Pilares de hormigón sobre área común, habitaciones, baños y terraza. Estructura de madera, aislación con lana de oveja (Bioaislan), forro interior con albayalde, tinglado de oregón exterior. Pinturas Osmos, pisos de porcelanatos y vinílicos. Termopaneles color bronce y techo Villalba electropintado previamente encamisado con OSB. Además se agregó backup solar con baterías de litio. Obra ejecutada el año 2021.